让人一眼心动的大三房长什么? 看过王家湾中央生活区就知道了!
导读:
好产品,从来都不缺购买力。
在当下的武汉楼市里,能同时满足“品质好、地段好、配套好、产品好”的项目,并不多见。当然,这样的产品,也备受购房者追捧!正如今天的主角——王家湾中央生活区,凭借其强势的竞争力,自项目面世以来备受热捧。近日,王家湾中央生活区最后一栋26#楼双地铁毛坯新品加推热销中,限量173席,臻席抢藏!
王家湾中央生活区占位二环王家湾芯,奢享周边醇熟丰盛配套以及项目自建的便捷商业。除此之外,此次加推的建面约75-165㎡全龄户型是市场关注的热点,尤其是项目主打的110-130改善大宅,户型设计方正、户户南北通透、空间奢阔,这对于想要“一步到位”的购房者来说,可谓是更佳的选择。
随着人口红利的持续释放、老龄化不断加剧以及市场调控力度加强等多方因素叠加,大中城市的置业逻辑也将重新改变。家庭人口增加、换房成本加大、房票稀缺……每一次换房,都有可能是最后一次,“改善”毫无疑问将成为楼市的焦点。

》》》项目实景图
在二孩、老人、学区、环境、物业等因素的催生下,越来越多的中产家庭都开始走进改善市场。但比起首套刚需,改善人群也更为焦虑。因为要考虑得更加周全,反而无法轻易下手。改善买房,已经不是“买一个大一点的房子”那么简单。除了空间面积的扩大,更需要了解改善型居所的方方面面。
以宽境尺度,盛载家人品质舒居
“改善”着眼于“住”这一核心,居住的真实感受,才成为了改善置业者最重要的考量。

》》》项目实景图
房子是家的容器,容器的大小,很大程度上影响居者的心情,甚至终生幸福。其实所谓的改善,就是让每一位家庭成员都拥享舒适的居住尺度,能够从中感受到心灵的愉悦,不会因为空间的掣肘,被迫压抑自己的生活兴趣与空间需求。正如王家湾核芯红盘——王家湾中央生活区,从关注生活享法、体验、空间居住感等多维角度出发,匠心构筑改善标准,打造的建面约99-137㎡改善住宅,为美好生活迭代而来。
专注产品力,创新全龄生长户型
改善客群不是第一次置业的小白,如何打造令他们心动的产品?只有在产品上下功夫。王家湾中央生活区专注卓越的产品力,关心客户的真实居住感受,匠心打造建面约99-137㎡阔尺三房,创造具有成长力的全龄户型。

》》》项目样板间实景图
在王家湾中央生活区,每一次的温馨归家时刻,都会体验到建面约99-137㎡全龄成长户型的优越——不仅具备南向大面宽、约4米的揽景阳台,还有主次卧飘窗、全明卫生间带来通透生活感,延展了室内的每寸生活空间。不仅如此,无论是建面约99㎡户型还是建面约137㎡户型在入户时都预留了独立玄关,让归家的第一时间,可以在这里卸下疲惫,同时还保留了私密性予生活以仪式感。

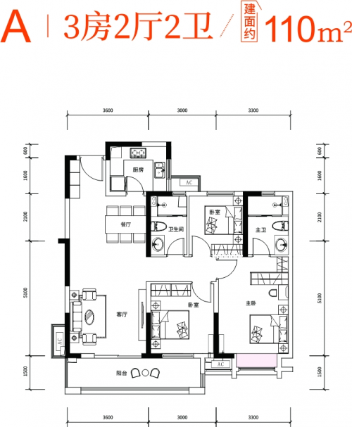
》》》建面约110㎡户型图
在户型空间的打造上,如何提升业主白天的使用体验也成了重点考量。客厅作为一个多功能的空间,不仅需要满足家人活动需求还要满足和朋友相聚的需要,因此建面约99㎡和137㎡三房户型采用餐客一体宽厅设计,除了吃饭、休闲,更大的空间可以满足孩子、老人的活动还能承担会客、聚餐等功能,丰富了业主白天使用空间的场景。

》》》建面约130㎡户型图
予生活以风景,让绿意盈满日常
高品质的舒适人居,不仅要注重内在的里子——即空间的打造,还要重视外部面子——即生活的享受,一处高品质的房子,如果没有仪式感的归家体验,将会令生活失去质感。从喧嚣的城市到宁静的家园,转变的不只有身份,还有自我的心境,王家湾中央生活区匠心打造的约7.5万方法式园林,以秩序井然的园林风景盛迎您归家的每一步。在日常生活中,南向揽景大阳台、飘窗等,也可将每一面风景纳入眼中,占据四季风光,从而让改善有了名副其实的品质提升。

》》》项目实景图
园区之内,五重立体景观环绕,推窗即阅风景,春有百花秋有月,夏有凉风冬有雪,一幕幕悠然场景,在宽阔视野里随时可见;在观景采光俱佳的大三房里,生活更加唯美、诗意。

》》》项目园林实景图
在改善盘愈发受人们欢迎的今天,要说何以称之为“令人心动的改善大盘”?王家湾中央生活区一定是最优答案。究其原因,之所以能在众多项目拼杀之下,始终占有市场的热度,莫过于王家湾中央生活区始终以产品实力说话,打造一套备受客户认可的产品,带来让拒绝表象、拥抱切实主义的“真改善”标准。
今日中国·版权声明
本网站所收集的部分公开资料来源于互联网,转载的目的在于传递更多信息及用于网络分享,并不代表本站赞同其观点和对其真实性负责,也不构成任何其他建议。本站部分作品是由网友自主投稿和发布、编辑整理上传,对此类作品本站仅提供交流平台,不为其版权负责。如果您发现网站上有侵犯您的知识产权的作品,请与我们取得联系,我们会及时修改或删除。
本网站所提供的信息,只供参考之用。本网站不保证信息的准确性、有效性、及时性和完整性。本网站及其雇员一概毋须以任何方式就任何信息传递或传送的失误、不准确或错误,对用户或任何其他人士负任何直接或间接责任。在法律允许的范围内,本网站在此声明,不承担用户或任何人士就使用或未能使用本网站所提供的信息或任何链接所引致的任何直接、间接、附带、从属、特殊、惩罚性或惩戒性的损害赔偿。
【特别提醒】:如您不希望作品出现在本站,可联系我们要求撤下您的作品。邮箱 sunny@chinatodayclub.com





